
Les Provinces Françaises
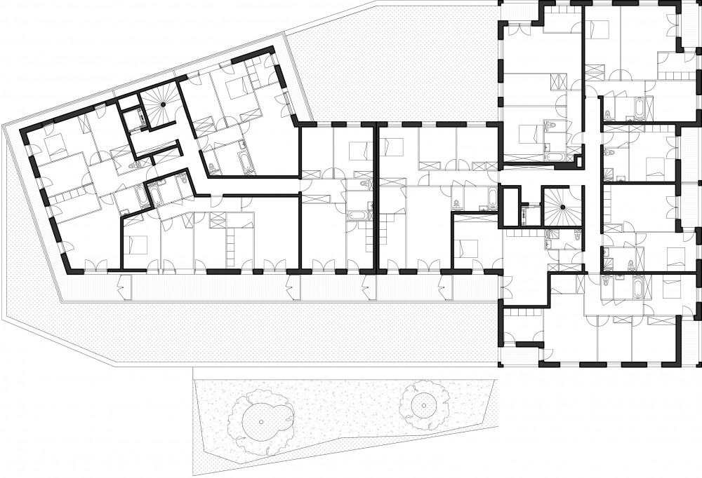
Créer une continuité urbaine au cœur de Nanterre, là où l’axe du Louvre à la Défense s’achève est le défi du lot A2 du quartier des Provinces-Françaises en pleine transformation. Pour insuffler de la diversité dans ce quartier de Nanterre, une partie des barres de logements sociaux cède la place à des programmes mixtes, dans des bâtiments qui ne font plus obstacle à la continuité de la ville mais en valorisent la porosité. Opérant un fin dosage entre accession et social, Fresh répond au concours lancé par Icade, promoteur immobilier et acteur incontournable du développement francilien, en association avec France Habitation, entreprise sociale de l’habitat qui offre des logements de qualité aux familles les plus modestes.L’agence conçoit un projet unitaire mais réparti dans deux volumes : deux émergences à R+8 et R+3, contenant respectivement les 65 logements en accession et les 35 logements sociaux, sont reliées au sol par un socle commun de trois niveaux dans lequel se loge une crèche. La cohérence de l’ensemble se traduit dans une écriture différenciée : les logements sociaux s’habillent de béton brut, et ceux en accession de panneaux perforés disposés de manière aléatoire. Ici mixité rime avec diversité.







Les Provinces Françaises
Localisation: Boulevard des Provinces Françaises, Nanterre.
Surface: 5 100 M2.
Coûts des travaux: 8 M euros HT.
Certifications: NF Habitat HQE, RT 2012 -20%.
Livraison: 2018.
Team: Icade, Berim, France Habitation.